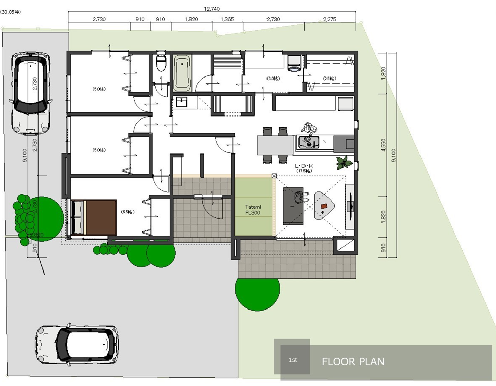
No.009
  • 畳コーナー
  • 間接照明
  • TVボード
  • オリジナルカラー
  • 造作収納
  • カップボード

空と調和する、水色の外壁が映える爽やかなおウチ

DATA
  • 熊本県天草市
  • ご家族3名様(ご主人様+奥様+お子様1人)
  • 延床面積
    99.37㎡(30.05 平)

空と調和する、水色の外壁が映える爽やかなおウチ

晴れた日には青空と溶け合い、曇りの日でも明るく映える、水色の外壁が印象的な一軒家。
優しさと清潔感を感じさせる外観は、訪れる人の心を和ませます。
自分らしい暮らしを大切にしたい方にぴったりの住まいが完成いたしました。

心落ち着く和の空間と洋の快適さが融合したリビング

ゆったりとしたリビングに隣接するのは、柔らかな畳の香りが漂う和空間。
くつろぎの時間をより豊かに演出します。お昼寝や読書、来客時のゲストルームとしても使える多目的な和室は、ご家族のライフスタイルに寄り添う一部屋。
リビングとのつながりを持たせつつ、ほどよく独立した空間が、日々の暮らしに心地よいメリハリをもたらします。

ギャラリー

  • STAFF

    アーキテクトプロデューサー

    米川功一

施工事例&お客様の声
WORKS
  • No. 014
    線と面でつくる、凛とした住まい

    線と面でつくる、凛とした住まい

    • 造作収納
    • TVボード
    • ランドリールーム
    • 造作洗面化粧台

    延床面積84.46㎡(25.54坪)

    家族構成/30代夫婦

    線と面でつくる、凛とした住まい
  • No. 013
    光と笑顔があふれる、家族想いのやさしいおウチ

    光と笑顔があふれる、家族想いのやさしいおウチ

    • 造作収納
    • TVボード
    • 造作洗面化粧台
    • 2階建て

    延床面積108.88㎡(32.93 平…

    家族構成/大人2人 子ども2…

    光と笑顔があふれる、家族想いのやさしいおウチ
  • No. 012
    デザインも暮らしやすさも、家族にフィットするおウチ

    デザインも暮らしやすさも、家族にフィットするおウチ

    • タイル調壁材
    • 造作収納
    • TVボード
    • 間接照明
    • アイランドキッチン
    • 2階建て

    延床面積111.48㎡

    家族構成/大人2人 子ども1…

    デザインも暮らしやすさも、家族にフィットするおウチ
  • No. 011
    上質なデザインと機能性を追求したおウチ

    上質なデザインと機能性を追求したおウチ

    • 2階建て
    • 造作洗面化粧台
    • 造作収納
    • TVボード

    延床面積104.33㎡(31.55坪)

    家族構成/大人2人 子ども2…

    上質なデザインと機能性を追求したおウチ
  • No. 010
    家族の毎日をあたたかく包み込む、ナチュラルなおウチ

    家族の毎日をあたたかく包み込む、ナチュラルなおウチ

    • リビング壁材
    • 造作収納
    • TVボード
    • 間接照明
    • 造作洗面化粧台
    • 2階建て

    延床面積111.97㎡(33.86坪)

    家族構成/ご家族4名様(ご主…

    家族の毎日をあたたかく包み込む、ナチュラルなおウチ
  • No. 009
    空と調和する、水色の外壁が映える爽やかなおウチ

    空と調和する、水色の外壁が映える爽やかなおウチ

    • 畳コーナー
    • 間接照明
    • TVボード
    • オリジナルカラー
    • 造作収納
    • カップボード

    延床面積99.37㎡(30.05 平)

    家族構成/ご家族3名様(ご主…

    空と調和する、水色の外壁が映える爽やかなおウチ
  • No. 008
    海が見えるモダンな家

    海が見えるモダンな家

    • カップボード
    • カフェスタイル
    • タンクレストイレ
    • ランドリールーム
    • 回遊動線
    • 造作洗面化粧台

    延床面積101.84㎡(30.80坪)

    家族構成/ご家族5名様(ご主…

    海が見えるモダンな家
  • No. 007
    二世帯が心地よく暮らせる、やさしい住まい。

    二世帯が心地よく暮らせる、やさしい住まい。

    • 外壁ソリド
    • カップボード
    • タンクレストイレ
    • TVボード
    • 2世帯住宅
    • 造作洗面

    延床面積144.91㎡(43.83坪)

    家族構成/ご家族3名様(ご主…

    二世帯が心地よく暮らせる、やさしい住まい。
  • No. 006
    オリジナルのテーマカラーの外壁を塗装で実現したおウチ

    オリジナルのテーマカラーの外壁を塗装で実現したおウチ

    • 間接照明
    • TVボード
    • オリジナルカラー
    • 造作収納

    延床面積102.05㎡(30.87坪)

    家族構成/ご家族3名様(ご主…

    オリジナルのテーマカラーの外壁を塗装で実現したおウチ
  • No. 005
    収納計画を取り入れたデザイン

    収納計画を取り入れたデザイン

    • 2階建て
    • プライベート空間
    • 収納計画
    • 造作洗面化粧台

    延床面積94.71㎡(28.64坪)

    家族構成/ご家族4名様(ご主…

    収納計画を取り入れたデザイン
  • No. 004
    モダンスタイルのファミリーホーム

    モダンスタイルのファミリーホーム

    • 2階建て
    • 吹き抜けあり
    • 見せ梁
    • 造作洗面台
    • 吹き抜け間接照明
    • シューズクローク(玄関収納)

    延床面積91.08㎡(27.55坪)

    家族構成/ご家族4名様(ご主…

    モダンスタイルのファミリーホーム
  • No. 003
    スッキリ収納を叶えた家

    スッキリ収納を叶えた家

    • 家事ラク導線
    • 収納クローゼット
    • プライベート空間
    • オーダー家具
    • ウッドデッキ

    延床面積116.49㎡(35.15坪)

    家族構成/ご家族3名様(ご主…

    スッキリ収納を叶えた家
  • No. 002
    こだわりの詰まった家☆

    こだわりの詰まった家☆

    • 家事ラク導線
    • 収納クローゼット
    • プライベート空間
    • オーダー家具
    • 2階建て

    延床面積86.94㎡(26.29坪)

    家族構成/ご家族4名様(ご主…

    こだわりの詰まった家☆
  • No. 001
    暮らしを家族で楽しむ2階建て空間

    暮らしを家族で楽しむ2階建て空間

    • プライベート空間
    • 家事ラク導線
    • 収納クローゼット
    • オーダー家具
    • ウッドデッキ
    • 2階建て

    延床面積99.49㎡(30.09坪)

    家族構成/ご家族2名様(ご主…

    暮らしを家族で楽しむ2階建て空間
公式アカウント
OFFICAL SNS ACCOUNT
住宅ローン
無料相談窓口
WEB
見積り