No.016
  • 2階建て
  • 造作洗面化粧台
  • 畳コーナー
  • 間接照明

高品質×デザインのローコスト住宅

DATA
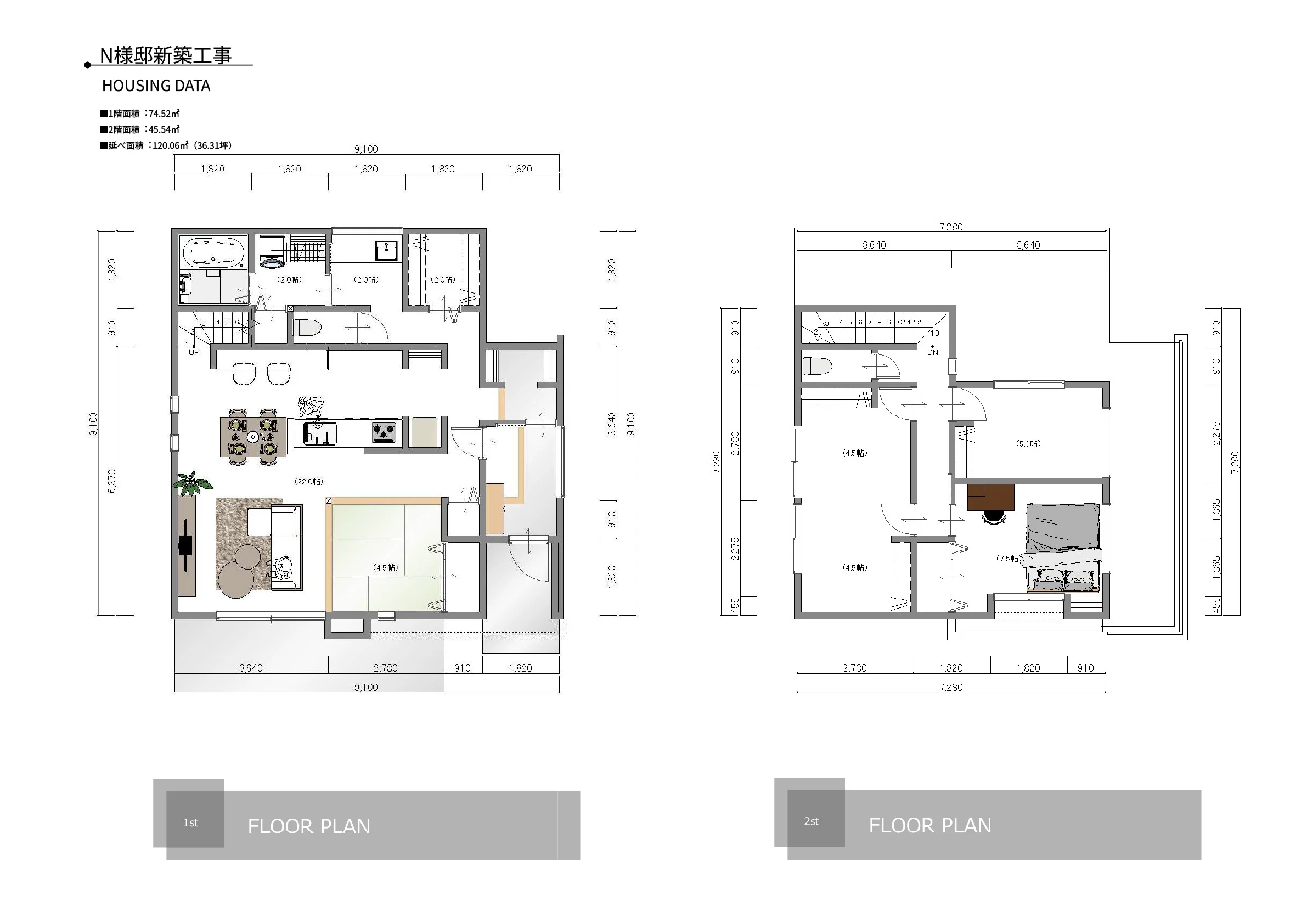
  • 熊本県山都町
  • 大人2人 子ども4人
  • 延床面積
    120.06㎡

高品質×デザインのローコスト住宅

「ローコスト住宅でも、おしゃれで快適な家は建てられる」
そんな想いから生まれた、デザイン性とコストパフォーマンスを両立した住まいです。

外観は、シンプルで飽きのこないモダンデザイン。
ダークカラーとホワイトのコントラストに、木目のアクセントを加えることで、ローコスト住宅でありながら高級感のある仕上がりを実現しました。

室内は、開放感のあるLDKを中心に設計。家族が自然と集まる空間づくりと、無駄のない間取りで、限られた予算の中でも広く感じられる工夫を施しています。
小上がりの畳スペースは、くつろぎ・来客・子育てなど多用途に使える人気の間取りです。

また、家事動線にも配慮し、毎日の生活がスムーズになる設計に。
「建築コストを抑えながら、暮らしやすさを最大化する」ことを大切にしています。

ローコスト住宅は、ただ安いだけではなく、設計と工夫次第で理想の住まいを実現できます。
コスト・デザイン・住みやすさ、そのすべてをバランスよく叶えた一邸です。

ギャラリー

  • STAFF

    アーキテクトプロデューサー

    米川功一

施工事例&お客様の声
WORKS
  • No. 018
    暮らしやすさも、デザインも、“想像以上”の家

    暮らしやすさも、デザインも、“想像以上”の家

    • 間接照明
    • 畳コーナー
    • 造作洗面化粧台
    • 2階建て

    延床面積104.33㎡(31.55坪)

    家族構成/大人2人

    暮らしやすさも、デザインも、“想像以上”の家
  • No. 017
    天草で叶える、ローコストデザイン住宅

    天草で叶える、ローコストデザイン住宅

    • 間接照明
    • 畳コーナー
    • 造作洗面化粧台
    • 2階建て

    延床面積105.99㎡

    家族構成/大人2人 子ども2…

    天草で叶える、ローコストデザイン住宅
  • No. 016
    高品質×デザインのローコスト住宅

    高品質×デザインのローコスト住宅

    • 2階建て
    • 造作洗面化粧台
    • 畳コーナー
    • 間接照明

    延床面積120.06㎡

    家族構成/大人2人 子ども4…

    高品質×デザインのローコスト住宅
  • No. 015
    静と美が共存する、モダンデザイン住宅

    静と美が共存する、モダンデザイン住宅

    • 造作洗面化粧台
    • 間接照明
    • 畳コーナー
    • 2階建て

    延床面積93.57㎡(28.30坪)

    家族構成/大人2人 子ども2…

    静と美が共存する、モダンデザイン住宅
  • No. 014
    線と面でつくる、凛とした住まい

    線と面でつくる、凛とした住まい

    • 造作収納
    • TVボード
    • ランドリールーム
    • 造作洗面化粧台

    延床面積84.46㎡(25.54坪)

    家族構成/30代夫婦

    線と面でつくる、凛とした住まい
  • No. 013
    光と笑顔があふれる、家族想いのやさしいおウチ

    光と笑顔があふれる、家族想いのやさしいおウチ

    • 造作収納
    • TVボード
    • 造作洗面化粧台
    • 2階建て

    延床面積108.88㎡(32.93 平…

    家族構成/大人2人 子ども2…

    光と笑顔があふれる、家族想いのやさしいおウチ
  • No. 012
    デザインも暮らしやすさも、家族にフィットするおウチ

    デザインも暮らしやすさも、家族にフィットするおウチ

    • 造作収納
    • TVボード
    • 間接照明
    • アイランドキッチン
    • 2階建て
    • タイル調壁材

    延床面積111.48㎡

    家族構成/大人2人 子ども1…

    デザインも暮らしやすさも、家族にフィットするおウチ
  • No. 011
    上質なデザインと機能性を追求したおウチ

    上質なデザインと機能性を追求したおウチ

    • 造作収納
    • TVボード
    • 造作洗面化粧台
    • 2階建て

    延床面積104.33㎡(31.55坪)

    家族構成/大人2人 子ども2…

    上質なデザインと機能性を追求したおウチ
  • No. 010
    家族の毎日をあたたかく包み込む、ナチュラルなおウチ

    家族の毎日をあたたかく包み込む、ナチュラルなおウチ

    • 造作収納
    • リビング壁材
    • TVボード
    • 間接照明
    • 造作洗面化粧台
    • 2階建て

    延床面積111.97㎡(33.86坪)

    家族構成/ご家族4名様(ご主…

    家族の毎日をあたたかく包み込む、ナチュラルなおウチ
  • No. 009
    空と調和する、水色の外壁が映える爽やかなおウチ

    空と調和する、水色の外壁が映える爽やかなおウチ

    • カップボード
    • 造作収納
    • オリジナルカラー
    • TVボード
    • 間接照明
    • 畳コーナー

    延床面積99.37㎡(30.05 平)

    家族構成/ご家族3名様(ご主…

    空と調和する、水色の外壁が映える爽やかなおウチ
  • No. 008
    海が見えるモダンな家

    海が見えるモダンな家

    • カフェスタイル
    • カップボード
    • タンクレストイレ
    • ランドリールーム
    • 回遊動線
    • 造作洗面化粧台

    延床面積101.84㎡(30.80坪)

    家族構成/ご家族5名様(ご主…

    海が見えるモダンな家
  • No. 007
    二世帯が心地よく暮らせる、やさしい住まい。

    二世帯が心地よく暮らせる、やさしい住まい。

    • 造作洗面
    • 外壁ソリド
    • カップボード
    • タンクレストイレ
    • TVボード
    • アイランドキッチン

    延床面積144.91㎡(43.83坪)

    家族構成/ご家族3名様(ご主…

    二世帯が心地よく暮らせる、やさしい住まい。
  • No. 006
    オリジナルのテーマカラーの外壁を塗装で実現したおウチ

    オリジナルのテーマカラーの外壁を塗装で実現したおウチ

    • 造作収納
    • オリジナルカラー
    • TVボード
    • 間接照明

    延床面積102.05㎡(30.87坪)

    家族構成/ご家族3名様(ご主…

    オリジナルのテーマカラーの外壁を塗装で実現したおウチ
  • No. 005
    収納計画を取り入れたデザイン

    収納計画を取り入れたデザイン

    • 造作洗面化粧台
    • 収納計画
    • プライベート空間
    • 2階建て

    延床面積94.71㎡(28.64坪)

    家族構成/ご家族4名様(ご主…

    収納計画を取り入れたデザイン
  • No. 004
    モダンスタイルのファミリーホーム

    モダンスタイルのファミリーホーム

    • 吹き抜け間接照明
    • 造作洗面台
    • 見せ梁
    • 吹き抜けあり
    • 2階建て
    • シューズクローク(玄関収納)

    延床面積91.08㎡(27.55坪)

    家族構成/ご家族4名様(ご主…

    モダンスタイルのファミリーホーム
  • No. 003
    スッキリ収納を叶えた家

    スッキリ収納を叶えた家

    • 家事ラク導線
    • 収納クローゼット
    • プライベート空間
    • オーダー家具
    • ウッドデッキ

    延床面積116.49㎡(35.15坪)

    家族構成/ご家族3名様(ご主…

    スッキリ収納を叶えた家
  • No. 002
    こだわりの詰まった家☆

    こだわりの詰まった家☆

    • 家事ラク導線
    • 収納クローゼット
    • プライベート空間
    • オーダー家具
    • 2階建て

    延床面積86.94㎡(26.29坪)

    家族構成/ご家族4名様(ご主…

    こだわりの詰まった家☆
  • No. 001
    暮らしを家族で楽しむ2階建て空間

    暮らしを家族で楽しむ2階建て空間

    • 家事ラク導線
    • 収納クローゼット
    • プライベート空間
    • オーダー家具
    • ウッドデッキ
    • 2階建て

    延床面積99.49㎡(30.09坪)

    家族構成/ご家族2名様(ご主…

    暮らしを家族で楽しむ2階建て空間
公式アカウント
OFFICAL SNS ACCOUNT
住宅ローン
無料相談窓口
WEB
見積り