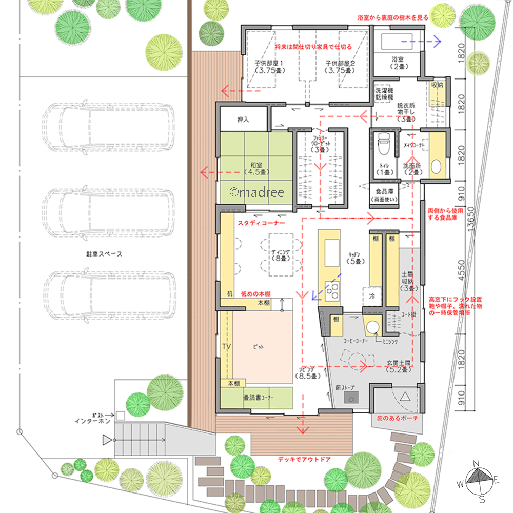
複数の回遊動線で屋内外を繋ぐ
本好きが篭れる畳の陽だまり読書コーナーのある平屋
面積表
| 1階面積 | 98.54㎡ (29.81坪) |
|---|---|
| 延床面積 | 98.54㎡ (29.81坪) |
| 建築面積 | 100.2㎡ (30.31坪) |
| 間口 | 13650.00(mm) |
| 奥行き | 8190.00(mm) |
間取り情報
| 部屋数 | 2LDK |
|---|---|
| 階数 | 平屋 |
| 道路付き | 西道路 |
| 玄関方角 | 南向き玄関 |
| 土地の特徴 | 変形地 台形 道路と高低差 土地90坪 土地90坪〜100坪 |
依頼者 | 3人家族 |
こんな方におすすめ
- ・30代共働き夫婦、長男0才(子ども2人の予定)
- ・趣味:珈琲豆、DIY、うつわ収集、読書、旅行、食、ピラティス、週末の晩酌
- ・リビングから、段差なくウッドデッキへ出られるようにしたい。
- ・狭めで良いので、篭って読書のできる空間を設けたい。
建築家名:Polar Bear
【全体のコンセプト】
・効率的に中と外が繋がる家。
【こだわりのポイント】
・駐車場のある西側から階段を登り、樹々のある雑木林トンネルを通って、玄関までアプローチします。
・道路からの視線を遮る雑木林は、東側にある隣家からの視線も遮ります。
・回遊性の良くするため、複数の回遊動線を計画しました。
・キッチンとコーヒーコーナーは引き戸で繋がっています。
・ドアは玄関のみで、部屋の中はほぼ引き戸で計画しました。
・玄関土間にコーヒーコーナーを設けて、薪ストーブを横に、座って仲間と集えるようにしました。リビングの段差も腰掛けとして利用できます。
・一部斜めの建具で仕切る事で、リビングからは外へ、 土間空間からは室内へ広がりを感じられるようにしました。
・玄関土間の高窓下にフックを沢山設けて、帰宅後の一時掛けに利用できるようにしました。
・キッチンを家の中心に配置する事で、家族や来客の様子が一目で分かるようにしました。
・水廻りの回遊性を持たせたので、家事動線がスムーズに繋がります。
・子どもが帰宅した際は、一度キッチン横を通るので、帰った事を確認できます。
・食品庫は両側使いになっているので、奥行きに無駄がなく使用可能です。 可動棚は両側に分けて2枚取り付けると更に使いやすくなります。
・リビングの一部を下げてピットを作りました。ピットを通らなくても、床と段差なくウッドデッキへ出入り可能です。
・ピットの大きな窓から、庭の樹々を見上げる事ができます。
・本をゆっくり読むために、読書コーナーを畳で計画しました。壁を背にしたり、寝転んだり、 お昼寝をしたりと有意義に過ごせます。本棚でピットと緩く繋がり、段差では腰掛も可能です。
・和室はダイニング側と裏側に動線を設けて、水廻りへすぐ行けるようにしました。
・子ども部屋は、将来的に家具で間仕切りできます。
・洗面所にメイクコーナーを設けて、ゆっくりとメイクができるようにしました。
・トイレには窓はありませんが、上部に高窓を作る事で光を取り込みます。
| 満足度 | |
|---|---|
| 建築家へのコメント |